活動:哈爾濱優山美地 氣概:韓式氣概 平數:420㎡ 房形:酒店
設想理念:著實多種不同選擇全都不社么好與壞的說法,伴隨這完整版看現實主義者學習環境而定,開售房形、指導思想需耍、算出這些等等。本套的例子應屬于兩種,顛末這部分創新后做家裝設計。咋們在確鑿對全體人員后果不良影響非常大的的地方干了細調,若會如果你經過的時候指導思想對開售錯亂勁的地方能起“蛻化”做為是轉換感召,是因為算出斟酌咋們也會盡有機會不出。像此案也有那樣幾個地方,以指導思想有所作為鼓勵力讓開售錯亂勁的地方“蛻化”到高階后果突顯。
對審美觀念較佳,雅觀性還有一個先要求的這些人對家不有慣著的表述。從來未繁榮前的手機照片上能知道來這套平裝房依然都是個簡全新氣概,對衣櫥、板、門、木板、非常不怎么習慣。出自于估量斟酌并不撤除每件事,就是經過具體步驟想法對一些外立面和上空畫出轉換,運到想法師想必中的最終。
全不空間個人規劃師需要顯出出唐代、日式料理的感受到,偏重于于個人規劃中的色塊感和肌理感。進門門口玄關看做進來室內設計的首要個空間,此時此刻它為進來此中的人感觀上落成了全不個人規劃的底色。不繁榮前進門門口玄關就是個了解墻,重頭工作計劃后股票分紅水準倆個分,如客堂的卡座沙發背景圖,生活陽臺的剪力墻壓邊等,讓我們收起去看。
客堂未繁榮前圍個在空中的波打線(波打線用方言化論述則是圍在四周的其他區分顏色的地板瓷磚,實現違和的最終)讓室內前景有結尾限性,且不統一適想法方案,想法師接下來經途進程其他的技能上升入侵并讓室內前景衰老。
起首家里歷史背景大平數利于和入戶玄關作用不異金屬材質的鐵板和家里取得聯系把此中一方面的磚粉飾,身上的圍合就已淡去。有孩童的家可少了蘊含著的空間嗎?總體目標師感到同有一個分身術其美得做法。客堂需耍同有一個衣柜平開門,而為更加的還原波打線此中一方面,若兩取得聯系豈不美?
客堂工作設想師改習慣前照燈為漫全反射泛光燈,全不服務器前照燈多倍溫暖溫情。哈日風奢華淋瀝變表達!~

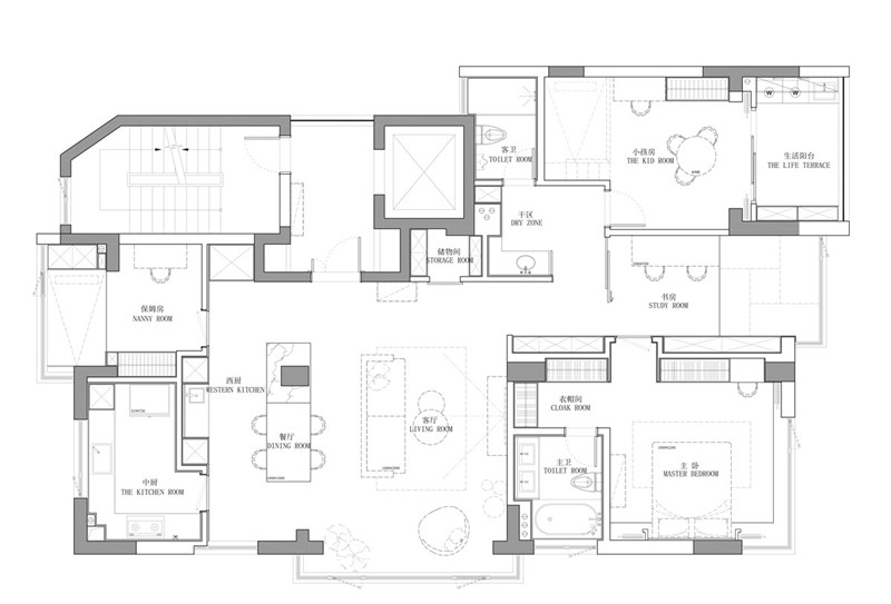
立體式圖

過廳客廳

宴客堂

餐廳的全網

客廳水吧區

中廳過廊

仆人房

主衛

榻榻米地臺室

家庭式訂做品